Photos















- 1–2 Dormitorios
- $1,280-$1,650Precios de alquiler
- 735–1,176Pies cuadrados
Promociones
ONE MONTH FREE~~ONE MONTH FREE! Move into any one-bedroom apartment by February 1, 2026, and receive ONE MONTH FREE! *new applicants only*
Acerca Greenleaf Meadows
Las amplias y bien conservados apartamentos de una habitación, 1,5 baños con vivir en un propietario e el que predominan las ocupadas edificio condominio. Sistemas de aire acondicionado centralizados, lavandería en el apartamento y climatizada, estacionamiento en garaje adjunto. El apartamento cuenta con techos de 10 pies de altura, una magnífica isla de granito de 12 pies y plano de planta de concepto abierto. Hay un lavaplatos y un refrigerador de vinos dobles de temperatura. Área de sala de estar se pueden utilizar como una oficina o comedor o incluso un área de residentes. A una poca distancia a pie de la línea Red y Brown trenes, así como el Clark y Ashland autobuses. Ubicado en un lugar central entre Lakeview, Andersonville, Lincoln Square y de la Southport Corridor, pero sin la congestión. Cerca de Montrose Harbor, Target, Jewel, y de Marianos.
Greenleaf Meadows se encuentra en el código postal 14612 de Greece, NY. Esta comunidad está gestionada profesionalmente por Greenleaf Meadows
Características personalizadas
- Sótano con lavadero/lavadero
- Aire central
- Teléfono inalámbrico Minipersianas en todo el apartamento
- Entradas con sistema de seguridad de intercomunicación
- Terminado habitación multiuso en el sótano
- Distrito escolar Greece
- Gran Sala de almacenaje privado en el sótano
- servicio de lavandería disponible las 24 horas, todos los días
- entrada privada
- Habitación familiar privada y lavadero con lavadora/secadora
- Entrada segura con sistema de intercomunicador
- Sistema de entrada segura e intercomunicación en edificios de apartamentos
- Amplios trasteros privados en el sótano
- Ventanas con paneles térmicos
- Tomas USB
- Lavadora y secadora en el sótano
- Conexiones para lavadora/secadora en el sótano
Información de contacto de la propiedad
Precios y Disponibilidad de Plano
Greenleaf Meadows ofrece apartamentos de 1 a 2 Dormitorios desde $1,280 con 735–1,176 pies cuadrados. Aquí está el precio actual y la disponibilidad:
¡Nuevo! Mapa Interactivo de Propiedades
1 Dormitorio
One Bedrooms
$1,280
1 Dormitorio, 1 Baño, 735-755 pies²Disponible AhoraGalería del Modelo
Planos
Fotos
Detalles de Diponibilidad
Precio Fecha Disponibilidad Unidad Pies² $1,280 Disponible Ahora One Bedrooms 735-755 pies² Características y Comodidades de Modelo
Características
- Aire acondicionado
- Almacén/trastero
- Bañera/ducha
- Calefacción
- Intercomunicador
- Preinstalación de cables
- Ventiladores de techo
Cocina
- Fogón
- Horno
- Lavavajillas
- Microondas
- Nevera
- Zona de eliminación de desechos
Espacio Vital
- Alfombra
- Armario de ropa blanca
- Suelos de baldosas
- Suelos de vinilo
Espacio al Aire Libre
- Patio
Características Propias
- Entrada segura con sistema de intercomunicador
- Gran Sala de almacenaje privado en el sótano
- Lavadora & secadora en el sótano
- Teléfono inalámbrico Minipersianas en todo el apartamento
Tasas y precios del modelo
Precio del Modelo
- $1,280
Modelo de apartamento: One Bedrooms$1,2801 Dormitorio, 1 Baño, 735-755 sq ftDisponible AhoraPlanosFotos![]()
One Bedrooms - Imagen 1 ![]()
One Bedrooms - Imagen 2 ![]()
One Bedrooms - Imagen 3 ![]()
One Bedrooms - Imagen 4 ![]()
One Bedrooms - Imagen 5 ![]()
One Bedrooms - Imagen 6 ![]()
One Bedrooms - Imagen 7 ![]()
One Bedrooms - Imagen 8 ![]()
One Bedrooms - Imagen 9 ![]()
One Bedrooms - Imagen 10 ![]()
One Bedrooms - Plano 11 ![]()
One Bedrooms - Plano 12 2 Dormitorios
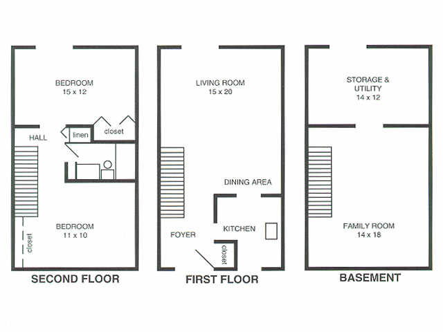
Townhomes
$1,650
2 Dormitorios, 1 Baño, 1176 pies²Disponible AhoraGalería del Modelo
Planos
Fotos
Detalles de Diponibilidad
Precio Fecha Disponibilidad Unidad Pies² $1,650 Disponible Ahora Townhomes 1176 pies² Características y Comodidades de Modelo
Características
- Aire acondicionado
- Almacén/trastero
- Bañera/ducha
- Calefacción
- Conexiones para lavadora/secadora
- Preinstalación de cables
- Ventiladores de techo
Cocina
- Congelador
- Horno
- Lavavajillas
- Microondas
- Nevera
- Zona de eliminación de desechos
Espacio Vital
- Alfombra
- Sala familiar
- Sótano
- Suelos de baldosas
- Suelos de vinilo
Espacio al Aire Libre
- Patio
Características Propias
- ¡Entrada privada
- Conexiones para lavadora/secadora en el sótano
- Teléfono inalámbrico Minipersianas en todo el apartamento
- Terminado habitación multiuso en el sótano
- Tomacorrientes con USB
- Ventanas aislantes
Tasas y precios del modelo
Precio del Modelo
- $1,650
Modelo de apartamento: Townhomes$1,6502 Dormitorios, 1 Baño, 1176 sq ftDisponible AhoraPlanosFotos![]()
Townhomes - Imagen 1 ![]()
Townhomes - Imagen 2 ![]()
Townhomes - Imagen 3 ![]()
Townhomes - Imagen 4 ![]()
Townhomes - Imagen 5 ![]()
Townhomes - Imagen 6 ![]()
Townhomes - Imagen 7 ![]()
Townhomes - Imagen 8 ![]()
Townhomes - Imagen 9 ![]()
Townhomes - Imagen 10 ![]()
Townhomes - Plano 11
Programar una Visita
Información de la Comunidad
- Unidades
- Plantas
- Construido en
- Ver el sitio web de la propiedad
Está a punto de salir de ApartmentHomeLiving.com…
Términos de Arrendamiento
- Têrminos del Alquiler
Fees and Policies
Las tarifas que figuran a continuación se basan en datos facilitados por la comunidad y pueden excluir tasas y servicios adicionales.
Tasas Requeridas
Básicos de una sola vez
- A pagar en el momento de la mudanza
- Application FeeiCharged per unit$20
Parking Info and Fees
- Surface Lot
- 1 Max
Exención de responsabilidad sobre las tasas de propiedad: Based on community-supplied data and independent market research. Subject to change without notice. May exclude fees for mandatory or optional services and usage-based utilities.
Características y Facilidades
Servicios
- Mantenimiento En El Lugar
- Instalaciones De Lavandería
Características de la Comunidad
- Sin Ascensor
Recreación
- Gimnasio
- Piscina
Características Interior
- Espacio De Almacenamiento
- Sistema De Seguridad
- Bañera/Ducha
- Calefacción
- Ventiladores De Techo
- Intercomunicador
- Preinstalación De Cables
- Conexiones Para Lavadora/Secadora
- Aire Acondicionado
Características de la Cocina
- Lavavajillas
- Cocina Comedor
- Microondas
- Fogón
- Nevera
- Horno
- Cocina
- Agua Caliente Instantánea
- Zona De Eliminación De Desechos
- Congelador
Características de la Sala de Estar
- Vestidores
- Sótano
- Comedor
- Sala Familiar
- Suelos De Vinilo
- Alfombra
- Armario De Ropa Blanca
- Suelos De Baldosas
- Cubiertas De Ventanas
Características al Aire Libre
- Patio
- Césped

Mapa
- Compras
- Universidades
- Supermercado
- Médicos

Mapa
Horario e Información de Contacto
| Lunes | 9:00 am–5:30 pm |
| Martes | 9:00 am–5:30 pm |
| Miércoles | 9:00 am–5:30 pm |
| Jueves | 9:00 am–5:30 pm |
| Viernes | 9:00 am–5:30 pm |
| Sábado | Cerrado |
| Domingo | Cerrado |
¿Qué son las clasificaciones Walk Score®, Transit Score® y Bike Score®?
- Walk Score® mide la viabilidad peatonal de cualquier dirección.
- Transit Score® mide el acceso a transporte público.
- Bike Score® mide la infraestructura de rutas para bicicletas de cualquier dirección.
Preguntas Frecuentes sobre Greenleaf Meadows
¿Donde se encuentra Greenleaf Meadows?
Greenleaf Meadows se encuentran en 500 Greenleaf Rd, Greece, NY
¿Cuál es el rango de alquiler vigente en Greenleaf Meadows?
El rango de alquiler de Apartamentos 1 dormitorios a 2 dormitorios en Greenleaf Meadows van desde $1,280 a $1,650
¿Qué horarios tiene la oficina de alquiler?
- El horario de oficina de Greenleaf Meadows es
- Lunes 9:00 am–5:30 pm
- Martes 9:00 am–5:30 pm
- Miércoles 9:00 am–5:30 pm
- Jueves 9:00 am–5:30 pm
- Viernes 9:00 am–5:30 pm
- Sábado Cerrado
- Domingo Cerrado
¿Se permiten mascotas?
Llámenos hoy para conocer nuestra política de mascotas y saber si las aceptamos.
¿Hay alguna promoción de renta?
La promoción que hay actualmente para la renta en Greenleaf Meadows es: ONE MONTH FREE~~ONE MONTH FREE! Move into any one-bedroom apartment by February 1, 2026, and receive ONE MONTH FREE! *new applicants only*
Opiniones y valoraciones de Inquilinos
Love living here
October 8, 2025Lived here many years. Moving for work. Always good service, great management, awesome snow removal. Quiet and safe to walk around. Will be back if I get back to Rochester.Reseña de Apartments.com
Very Pleased with Greenleaf
September 24, 2024I have lived here 2 times in the past. I keep coming back. The staff is friendly and always keep up the grounds and everything else. Best snow removal around. I had a leak and they were there in minutes and cleaned it up and left it better than it was. No office on site, but they are always reachable by phone or email. They respond and answer the questions quickly. I walk the entire place 2x a day for my health. Always feel safe. My daughter also lives here in another apartment on her own, ...and has the same feeling. Maintenance is great. Would highly recommend. I have to leave for a job transfer, but most likely will be back again.Leer MásReseña de Apartments.com
Pros/Cons
April 26, 2023My fiancé and I lived here for nearly 2 years and there are definite pros and cons. Pros: -Amenities, -quiet -family community -maintenance keeps up lawn care and snow removal well, -management responds to concerns quickly, - close to everything. -Ability to pay slightly more to be “month to month” renters- this was a huge pro for us when we started looking to buy a house as we did not have to get stuck in another year long lease. It was an extra 50$ a month which was well worth it to us to ...not have the potential of buying out a year long contract. Cons: -Extremely poorly insulted. Different areas of the residence have vastly different temperatures hot to cold from different areas and bugs galore! No matter how often you clean your place there are cracks in the door ways and windowsills from improper installation that allow spiders to get in. I’ve lived in 5 different buildings and have never had a problem with spiders until this place. -Lack of security cameras in parking lot- one of our cars got broken into and tools were stolen and we were told basically that it isn’t their fault and we need to make sure the doors were locked and not leave valuables in the vehicle. The doors were locked at the time. And have heard this was not an isolated event- this place could easily afford to install a camera or two in the parking lots to deter the individuals who steal. Definitely recommend buying a camera for your place. -A water main broke during our time living here and it was fixed relatively quickly however, a maintenance man tried to gain entry to our residence without notification because “he wanted to ensure our basement wasn’t flooding”, even though we had not reached out to say it was. This was a second occurrence as another maintenance man tried to gain entry twice through our back door on the main level as he was fixing our air conditioning unit and wanted to “ask us a question” and was blocked by our couch, it is a little uncomforting that they can and will use their keys to gain access for these small reasons when this is supposed to be a private residence that is only accessed without our knowledge for emergencies. Neither of which described above were. -Lawn care is done at various hours of the day- 830 am all the way to 430pm which can be irritating. -Sound proofing- again building is poorly insulated and with that comes horrible sound proofing- very easily hear things in the buildings attached to yours and from outside.Leer MásReseña de Apartments.com
We loved living here
January 19, 2021My fiancé and I lived here for a year and thoroughly enjoyed our time. The community was very safe and well kept, the maintenance staff was always working and would be there right away if we needed anything. Our neighbors were very nice and we enjoyed using the pool and gym on site. The move in and out process was very smooth and we will always look at this place and our memories there very fondly.Reseña de Apartments.com
I miss living here!
December 2, 2020My fiance and I lived in Greenleaf Meadows for 3 years from 2016-2019 until we moved to Albany, and it gave me such high expectations of what apartments should be like. I noticed there weren't many reviews for this complex, so I wanted to give my two cents! Snow plowing was excellent, my retired neighbor shoveled our sidewalk, maintenance was fast and good (though we didn't need it very often), we got our entire security deposit back (and the little we didn't get back on the pet deposit was 100% ...expected, as our cat broke our blinds), I used the (minimal) gym very often when I didn't want to drive to my Greece gym for a full training session, and any concerns regarding neighbors were taken seriously. Giovanna is an excellent office manager, as was the secretary that worked there. That retired neighbor I mentioned had lived in the complex for over 30 years, and the overall feel of the community is a mix of younger families with kids, retired folks, and some young professionals. I would walk outside every morning with my coffee before work and say hi to all the neighbors doing the same, neighboring kids played together, and I loved seeing how people customized their porches with gardens and such - it was really lovely. There are very few negatives. I feel like either the police or firemen were in the complex every few days - it wasn't loud generally, but it could be quite distracting. People speed down the two main roads and we did witness quite a few accidents over the years, which made me nervous because children often played basketball together at the end of the road (I love what a great community this was!) That said, the tennis court and basketball area were completely useless the entire time we lived there - you couldn't use them, but that could have changed since we moved. (That said I always saw people using the pool, so that amenity seems much better!) I also would prefer an in-unit washer/dryer, but having it in the basement of each building is quite good compared to other complexes we've seen since. Overall we loved it there and constantly joke about moving back to Rochester just so we can live there again. If we ever did move back, we would definitely upgrade to the 2B townhome this time!Leer MásReseña de Apartments.com
Parking lot/ no security cameras
September 30, 2020My car has been struck twice in the parking lot. They don’t have cameras, if your property gets damaged your basically on your own.Reseña de Apartments.com
Great place to live
December 6, 2019My daughter has recently moved in. They couldn't have been nicer and more professional in every aspect. After a few months, we are still impressed, especially with the snow removal and maintenance . Don't get me wrong , it is a large place, but it is really quiet. We didn't know much about the area and looked at several other places before deciding on this one. You can tell it is professionally managed yet they care about the people who live there. If I didn't own my home, in Syracuse, I ...would move in too. My daughter plans to stay there a few years. I recommend Greenleaf Meadows.Leer MásReseña de Apartments.com
Great Staff and Management
March 21, 2019I have lived here for 3 years. The management and staff are amazing! They are very concerned about any issues and resolve them immediately. Maintenance items are fixed so fast. They do a lot of work to make this place look good. They gave us nice new roads, and awesome new patio walls. There are a lot of apartments but it so quiet and calm. Love it here. Looking for a house, but if I ever need another apartment, I am moving back.Reseña de Apartments.com
Wonderful Management
June 20, 2018The grounds are always kept nice. The staff is friendly and well trained. They will always get back to you with an answer if they don't know it at the time. The apartments are kept up and when we moved in, it was perfect. The service mechanics are always quick and do nice work. I would highly recommend this place to anyone. My mom and dad have lived here for 5 years and every time I visit, they can't say enough. I noticed it is quiet outside even in the middle of summer. That is all.Reseña de Apartments.com
workers
April 11, 2018I have lived here for awhile and the maintenance crew here is absolutely fabulous....never seen anything like them....I had an issue today, they not only fixed it quickly, as always but completely cleaned up afterwards, I would have never even knew that they were there....much thanks to Scott, their leader, and today Pete and Shane.......you are all truly the best!Reseña de Apartments.com
Stopped Waiting to Exhale
October 3, 2015If you want to take a cleansing breathe from city living this is the place. Short drive off expressway down tree-lined road with a cute little overpass reminiscent of a garden bridge. Apartments have three levels and have more of a feel of a private home than an apartment-Each unit manages to maintain it's individual character, has a private patio, and the management provides flower seeds to landscape your yard as you like. Of course it has all the amenities, Olympic size pool, fitness center, ...but also boasts a nationally accredited day care center! You can unwind on the beach, which is within walking distance, take in the beautiful fall foliage on nearby walking & biking trails or shop until you drop at nearby malls and specialty shops.Leer MásReseña de Apartments.com
Great place to live!
August 14, 2015I have lived at Greenleaf Meadows for over a year and I really enjoy it. The one bedroom apartments are very spacious. The only downside is that the kitchen is very small. Noise from neighbors is very minimal. I live about .7 miles from Lake Ontario - which I enjoy walking to almost every morning (weather permitting) Charlotte Beach is less than 2 miles away. They have a laundymat and an exercise center that I often frequent and they have daycare building on the premises also. There is ...also a playground and a swimming pool. I often go for walks around the complex after dinner. People are friendly. Maintenance requests are done quickly and the office staff is very friendly. You will truly enjoy living here!!Leer MásReseña de Apartments.com
Escuelas Cercanas
Arcadia Middle School
Arcadia High School
Lakeshore Elementary School
English Village Elementary School
Sitios de Interés
Tiempo y distancia desde Greenleaf Meadows.
Grandes Superficies de Ventas
Walgreens
Walgreen's
Walmart
Universidad
Tiendas
Wegmans
Price Rite
Aldi
Hospitales
Centros Comerciales
Greenleaf Meadows tiene 5 centros comerciales en un radio de 1.9 millas.
Barrios cercanos
Rango de Precios de los Alquileres en la Zona
| Dormitorios | Precio Promedio | Más barato | Más caro |
|---|---|---|---|
| Apartamentos Estudio en Greece | $1,093 | $920 | $1,859 |
| Apartamentos 1 Dormitorios en Greece | $1,246 | $850 | $1,835 |
| Apartamentos 2 Dormitorios en Greece | $1,509 | $875 | $2,475 |
| Apartamentos 3 Dormitorios en Greece | $1,979 | $1,380 | $2,550 |
| Apartamentos 4 Dormitorios en Greece | $1,714 | $1,714 | $1,714 |
Ver Apartamentos más destacados en Greece
Por el Precio
Por tipo de comunidad
- Apartamentos en Greece con Oferta Especial
- Apartamentos en Greece Más Valorados
- Apartamentos en Greece Viviendas Corporativas
- Apartamentos en Greece Amueblado
- Apartamentos en Greece Reja de Entrada Automática
- Apartamentos en Greece De Bajos Ingresos
- Nuevos Apartamentos en Greece
- Apartamentos en Greece Personas Mayores
- Apartamentos en Greece Contratos de Corto Plazo
- Apartamentos en Greece Estudiante
- Apartamentos en Greece con Utilidades Incluidas




















